ELEVATORS - PASSENGER LIFT

Standard Type

 
image-1 image-1
   

Premium Type

 
image-1 image-1
   

Observation

 
image-1 image-1
   
image-1 image-1
   

Ceiling

 
image-1 image-1

SC-01             

SC-02          

image-1 image-1

SC-03             

SC-04          

image-1 image-1

SC-05(Option)            

SC-06(Option)        

   

Etching Pattern

 
image-1 image-1 image-1

SEP-01     

SEP-02     

SEP-03     

     
image-1 image-1 image-1

SEP-04     

SEP-05     

SEP-06     

     
image-1 image-1 image-1

SEP-07     

SEP-08     

SEP-09     

   

Deco Tile

 
image-1 image-1 image-1

SF-01     

SF-02     

SF-03     

   

Marble

 
image-1 image-1 image-1

SF-04     

SF-05     

SF-06     

   

Car Operating Panel

 
image-1 image-1 image-1 image-1 image-1

SOP-01      

SOP-02        

SOP-03         

SOP-04          

SOP-05     

   

CPI

 
image-1 image-1 image-1

SPI-01   

SPI-02   

SPI-03   

   

Hall Button

 
image-1 image-1 image-1 image-1

  SHB-01

    SHB-02

    SHB-03

    SHB-04

   

Button

 
image-1 image-1 image-1 image-1

           SB-01

           SB-02

           SB-03

       SB-04

   

Hand Rail

 
image-1 image-1

SHR-01

SHR-02

   

Specification

 
image-1
   

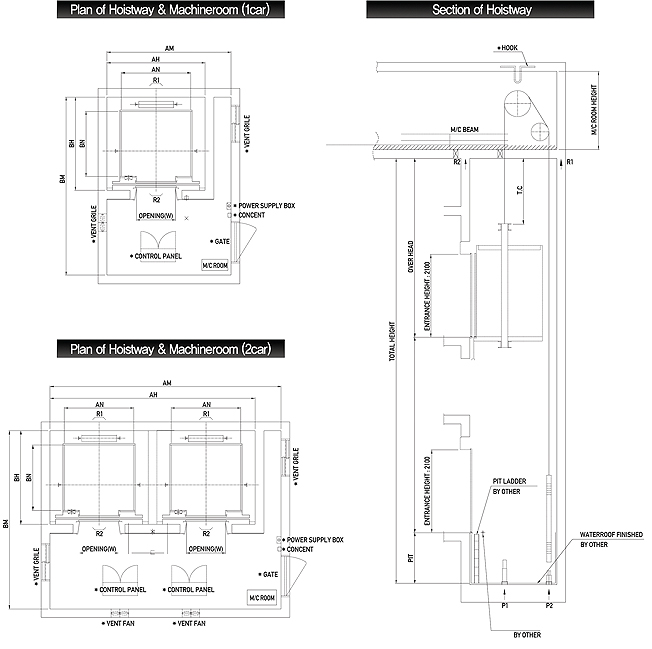
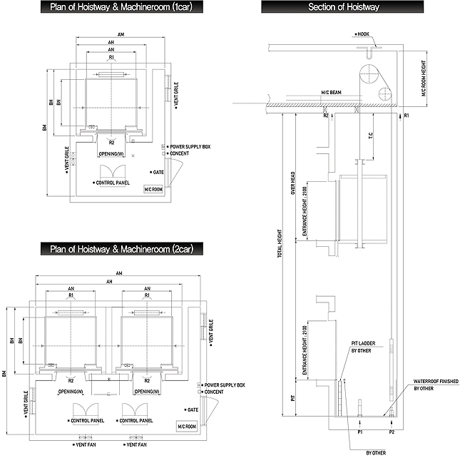
Plan & Section

 
image-1